Attention Builders and Developers, are you looking for a fully approved site to commence construction NOW?
This DA Approved site in Reservoir, Melbourne is excellent value for money at $200,000 per unit site, subject to negotiation.
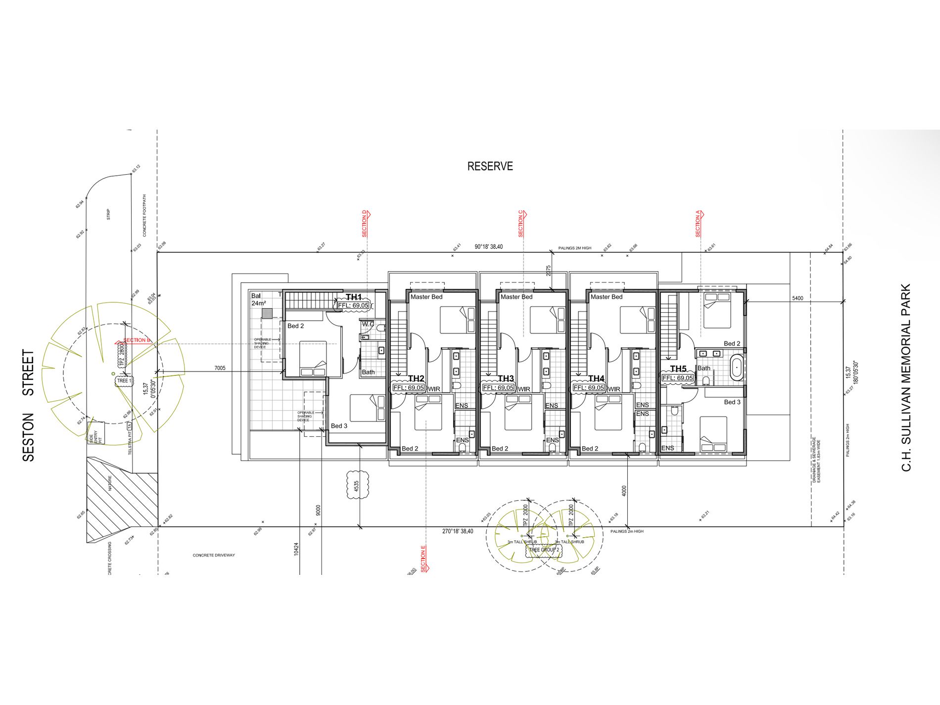
The site is approved for x 5 Townhouses over 3 levels with a total building mass of approximately 92 Squares.
The direct access to 'Sullivan Park' and the 'Darebin Creek Walking Trail', which will be extremely attractive to buyers once they are complete.
The luxurious townhouses are home to ideal layouts which are the perfect mix of intelligent form and functionality. The complex consists of three residences with two bedrooms, two bathrooms combined with spectacular north-facing private balconies.
While residence one has three bedrooms, two bathrooms and residence five has been provided with three bedrooms and three bathrooms. All residences have secure remote control parking combined with additional storage, with both units 1 and 5 offering a 'Double Lockup Garage'.
Estimated combined resale value of $3.3 to $3.5 million. (Subject to future market conditions).
Townhouse Details:
Unit 1 - 173.4 m2 of living, plus 33.43 m2 balcony (3 bedrooms, 2 bathrooms & Double Lockup Garage)
Units 2, 3 & 4 - 132 m2 of living, plus 8 m2 balcony (2 bedrooms, 2 bathrooms, plus Study and Single Lockup Garage)
Unit 5 - 169 m2 of living, plus 17 m2 of balcony, plus 51.5 m2 of Private Open Space. (3 bedrooms, 3 bathrooms & Double Lockup Garage)
Alternative Development Options:
3 Unit Site (STCA)
Proposed:
1. 160m2/ 3 bed/ 2 bath/ small 2nd liv/ double garage/ street facing
2. 155m2/ 3 bed/ 2 bath/ double garage
3. 135m2/ 3 bed/ 2 bath/ single garage + tandem
OR
Two large side by side townhouses (Dual Occ.)
For all documentation please contact me via email or to discuss the property directly on 0407 035 288.

























